Продаж 1к квартири, 40 кв.м, вул.Текстильна (№ 213-248-783)
Ціна: 37 000 $

Тернопіль, Тернопільська, Аляска
Характеристики
| Ціна: | 37 000 $ |
|---|---|
| № об'єкта: | 213-248-783 |
| Кімнат: | 1 |
| Поверх: | 1 / 8 |
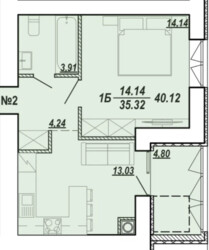
| Площа: | 40 / - / 18 м2 |
| Санвузол: | 1 сумісний |
| Балкон: | лоджія |
| Є оселя / КРЕДИТ: | - |
| Перепис по дольовій участі через забудовника: | - |
| Тип опалення: | Індивідуальне |
| Тип стін будинку: | Цегляний |
| Стан ремонту: | Без внутрішніх робіт, після забудовника |
| Двохрівнева квартира: | - |
| Додатково: | новобудова |
Опис
Продається квартира на вул. Текстильній.
Житло розташоване в зданому цегляному будинку на зручному 1-му поверсі.
Основні характеристики:
Загальна площа – 40 кв.м
Роздільне планування, просторі та світлі кімнати
Квартира у стані після будівельників:
-залиті стяжки
-поштукатурені стіни
-розведена по точках електрика
-Підлога утеплена.
Ідеальний варіант для тих, хто хоче зробити ремонт під себе.










