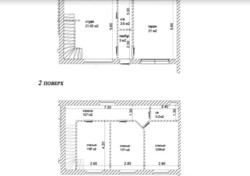
Продаж 2 поверхового таунхауса з ділянкою на 1.3 сотки, 105 кв. м, Підгородне (№ 22-419-751)
Ціна: 41 000 $

Характеристики
| Ціна: | 41 000 $ |
|---|---|
| № об'єкта: | 22-419-751 |
| Тип: | таунхаус |
| Поверхів: | 2 |
| Спалень: | 4 |
| Площа будинку: | 105 м2 |
| Ділянка: | 1 сот |
| Тип опалення: | Комбіноване опалення |
| Тип стін житлового будинку: | Цегляний |
| Стан ремонту: | Без внутрішніх робіт |
| Наявність каналізації: | + |
| Наявсність санвузла/ів у будинку: | - |
| Наявність газу: | Підключено |
| Наявність водопостачання: | Власна свердловина |
Адреса: Тернопільська, Тернопільський, Підгороднє
Продається таунхаус у садовому товаристві села Підгородне. Будинок площею 105 кв.м, сирий. Водопостачання — власна свердловина, зроблено септик, електрика підведена до будинку.
Обжитий район, централізований вивіз сміття, інтернет-провайдери.








