Продаж 3к квартири 120.4 кв. м в р-н Старий парк (№ 212-656-882)
Ціна: 84 000 $

Тернопіль, Тернопільська, Старий парк
Характеристики
| Ціна: | 84 000 $ |
|---|---|
| № об'єкта: | 212-656-882 |
| Кімнат: | 3 |
| Поверх: | 5 / 5 |
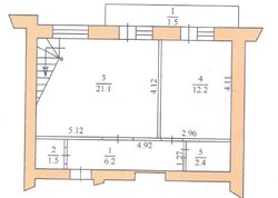
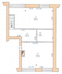
| Площа: | 125,4 / 77,9 / 12,2 м2 |
| Є оселя / КРЕДИТ: | - |
| Перепис по дольовій участі через забудовника: | - |
| Тип опалення: | Індивідуальне |
| Тип стін будинку: | Цегляний |
| Стан ремонту: | Без внутрішніх робіт, після забудовника |
| Двохрівнева квартира: | - |
| Додатково: | новобудова |
Опис
Продається дворівнева трикімнатна квартира загальною площею 120, 4 м2. Перший рівень якісно відштукатурено (частину стін оздоблено стартовою шпаклівкою). Встановлені масивні металеві двері (дизайн 3D) з нержавіючим порогом та протизламними накладками на замках. В квартирі два санвузли (2, 5 м2 та 7 м2), один з який повністю укомплектовано (унітаз + умивальник + дзеркало). Встановлений сучасні лічильник обліку води (з дистанційним передавачем даних) та електролічильник. Виведено канали під інтернет та кабельне телебачення. Будинок спроектовано під індивудуальне опалення. Дах утеплено мінеральною ватою Rockwool (товщина 20 см), встановлено гідро- та паробарєр. Є можливість монтажу сонячних панелей для повної енергонезалежності. Високий другий рівень (2 2, 7 м). Є один великий балкон (6 м2, в техпаспорті враховані лише 1, 5 м2). Поруч з квартирою є комора (5 м2, не включено в загальну площу). Квартира продається з будівельним реманентом та матеріалами для водо розподілу й каналізації.
Будинок утеплений пінопластом товщиною 10 см. Територія двору закрита (встановлено шлагбаум).
















