Продаж 2к квартири 70.9 кв. м на вул. Пирогова (№ 212-779-402)

Ціна: 54 000 $
Характеристики
Ціна: | 54 000 $ |
---|---|
№ об'єкта: | 212-779-402 |
Кімнат: | 2 |
Поверх: | 9 / 9 ліфт |
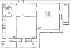
Площа: | 72 / - / 11 м2 |
Санвузол: | 1 роздільний |
Балкон: | балкон |
Є оселя / КРЕДИТ: | - |
Перепис по дольовій участі через забудовника: | - |
Тип опалення: | Індивідуальне |
Тип стін будинку: | Цегляний |
Стан ремонту: | Без внутрішніх робіт, після забудовника |
Двохрівнева квартира: | - |
Додатково: | новобудова |
Адреса: Тернопільська, Тернопіль, Центр
Продається квартира на вулиці Пирогова. Квартира знаходиться в новобудові та має 2 кімнати. Загальна площа становить 70 кв.м, а площа кухні - 11 кв.м. Розташована на 8 поверсі з 9-ти поверхового будинку, є ліфт. Квартира сира, стан після забудовника.