Продаж 2к квартири 67 кв. м на вул. Чернівецька (№ 212-867-709)

Ціна: 46 260 $
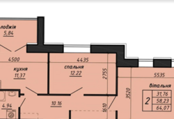
Характеристики
Ціна: | 46 260 $ |
---|---|
№ об'єкта: | 212-867-709 |
Кімнат: | 2 |
Поверх: | 2 / 9 ліфт |
Площа: | 67 / - / 12 м2 |
Санвузол: | 1 |
Є оселя / КРЕДИТ: | - |
Перепис по дольовій участі через забудовника: | - |
Тип опалення: | Індивідуальне |
Тип стін будинку: | Цегляний |
Стан ремонту: | Без внутрішніх робіт, після забудовника |
Двохрівнева квартира: | - |
Додатково: | новобудова |
Адреса: Тернопільська, Тернопіль, Оболоня
Продається двокімнатна квартира по вулиці Чернівецька. Квартира у будинку, що перебуває на початковій стадії будівництва, здача запланована на другий квартал 2025 року. Будинок цегляний, передбачене бомбосховище.