Продаж 2к квартири 63 кв. м на вул. Чумацька (№ 212-938-613)

Ціна: 65 000 $
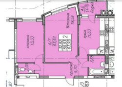
Характеристики
Ціна: | 65 000 $ |
---|---|
№ об'єкта: | 212-938-613 |
Кімнат: | 2 розд |
Поверх: | 9 / 15 ліфт |
Площа: | 63 / 33 / 12 м2 |
Санвузол: | 2 роздільний |
Балкон: | балкон |
Є оселя / КРЕДИТ: | - |
Перепис по дольовій участі через забудовника: | - |
Тип опалення: | Індивідуальне |
Тип стін будинку: | Монолітно-каркасний |
Стан ремонту: | Без внутрішніх робіт, після забудовника |
Двохрівнева квартира: | - |
Додатково: | новобудова |
Адреса: Тернопільська, Тернопіль, Дружба
Продається двокімнатна квартира у житловому комплексі Панорама, вул.Чумацька, Дружба. Квартира видова, розташована на 9 поверсі, вигляд з вікон на ліс та частково озеро. Квартира без внутрішніх робі, залиті стяжки, зроблена уся розводка під воду, батареї та теплу підлогу.