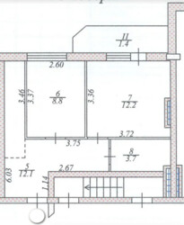
Продаж 3к квартири 83 кв. м на вул. Золотогірська (№ 212-949-969)

Ціна: 63 000 $
Характеристики
Ціна: | 63 000 $ |
---|---|
№ об'єкта: | 212-949-969 |
Кімнат: | 3 |
Поверх: | 9 / 10 ліфт |
Площа: | 83 / - / - м2 |
Санвузол: | 2 сумісний |
Є оселя / КРЕДИТ: | - |
Перепис по дольовій участі через забудовника: | - |
Тип опалення: | Індивідуальне |
Тип стін будинку: | Цегляний |
Стан ремонту: | Євроремонт |
Двохрівнева квартира: | + |
Додатково: | новобудова |
Адреса: Тернопільська, Тернопіль, Кутківці
Продається трикімнатна дворівнева квартира у тихому спальному районі. Квартира в новому будинку Загальна площа 83 кв.м. Гарний стан, зроблено свіжий ремонт, встановлено нові меблі. Поруч з будинком є дитячий майданчик, магазини, поштомат, зупинки громадського транспорту.