Продаж 2к квартири 80.5 кв. м на вул. Енергетична (№ 212-952-800)
Ціна: 90 000 $

Тернопіль, Тернопільська, Центр
Характеристики
| Ціна: | 90 000 $ |
|---|---|
| № об'єкта: | 212-952-800 |
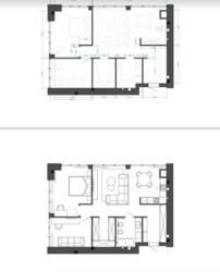
| Кімнат: | 2 |
| Поверх: | 11 / 11 ліфт |
| Площа: | 80 / 29 / 25 м2 |
| Санвузол: | 1 сумісний |
| Є оселя / КРЕДИТ: | - |
| Перепис по дольовій участі через забудовника: | - |
| Тип опалення: | Індивідуальне |
| Тип стін будинку: | Цегляний |
| Стан ремонту: | Без внутрішніх робіт, після забудовника |
| Двохрівнева квартира: | - |
| Додатково: | новобудова |
Опис
Продається видова двокімнатна квартира в новому житловому комплексі. Квартира площею 80,5 кв.м, велика кухня-вітальня, дві окремі кімнати, просторий санвузол та гардеробна. Квартира сира, зроблена тепла підлога, залиті стяжки, встановлено якісні двері та вікна. Ціна з підземним паркінгом.




















