Продаж 1к квартири 43 кв. м на вул. Чернівецька (№ 213-067-475)

Ціна: 55 000 $
Характеристики
| Ціна: | 55 000 $ |
|---|---|
| № об'єкта: | 213-067-475 |
| Кімнат: | 1 |
| Поверх: | 4 / 9 ліфт |
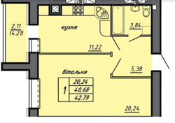
| Площа: | 43 / - / - м2 |
| Санвузол: | 1 сумісний |
| Балкон: | балкон |
| Є оселя / КРЕДИТ: | - |
| Перепис по дольовій участі через забудовника: | - |
| Тип опалення: | Індивідуальне |
| Тип стін будинку: | Цегляний |
| Стан ремонту: | Без внутрішніх робіт, після забудовника |
| Двохрівнева квартира: | - |
| Додатково: | новобудова |
Адреса: Тернопільська, Тернопіль, Оболоня
Продається однокімнатна квартира у цегляному будинку по вулиці Чернівецька. Квартира розташована на комфортному четвертому поверсі. Загальна площа 43 кв.м, гарне та практичне планування, велика кімната, окрема кухня, суміжний санвузол, місткий передпокій, є балкон. Квартира сира.
В доступності вся необхідна інфраструктура.








