Продаж 1к квартири 43.2 кв. м, Байківці (№ 213-133-106)

Ціна: 25 400 $
Характеристики
Ціна: | 25 400 $ |
---|---|
№ об'єкта: | 213-133-106 |
Кімнат: | 1 |
Поверх: | 3 / 9 ліфт |
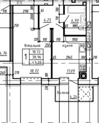
Площа: | 43 / - / - м2 |
Санвузол: | 1 сумісний |
Балкон: | балкон |
Є оселя / КРЕДИТ: | - |
Перепис по дольовій участі через забудовника: | - |
Тип опалення: | Індивідуальне |
Тип стін будинку: | Цегляний |
Стан ремонту: | Без внутрішніх робіт, після забудовника |
Двохрівнева квартира: | - |
Додатково: | новобудова |
Адреса: Тернопільська, Тернопільський, Байківці
Продається квартира у новому, цегляному будинку у с.Байківці. Квартира розташована на зручному третьому поверсі. Загальна площа 43,2 кв.м, металопластикові вікна, чорнова штукатурка та вхідні двері. Міське водопостачання та каналізація. Квартира сира.