Без комісії !Продається простора 3 кім квартира в Байківцях (№ 213-214-968)
Ціна: 55 000 $

Братів Мисулів вул., Байківці, Тернопільський, Тернопільська
Характеристики
| Ціна: | 55 000 $ |
|---|---|
| № об'єкта: | 213-214-968 |
| Кімнат: | 3 |
| Поверх: | 6 / 10 |
| Площа: | 90 / - / - м2 |
| Балкон: | балкон |
| Є оселя / КРЕДИТ: | - |
| Перепис по дольовій участі через забудовника: | - |
| Тип опалення: | Індивідуальне |
| Тип стін будинку: | Цегляний |
| Стан ремонту: | Без внутрішніх робіт, після забудовника |
| Двохрівнева квартира: | - |
Опис
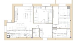
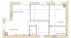
БЕЗ КОМІСІЇ !Продається простора 3 кімнатна квартира в Байківцях.
До міста 5 хв пішком ! Квартира знаходиться на 6 поверсі.
Зроблена тепла підлога, стяжка, встановлені дорогі двері.
Будинок на епаті здачі до кінця 2025 року будуть всі коменікації
У квартирі зроблений проект дизайну, дві окремі кімнати ( спальні ), велика кухня з окремим зонами , гардероб , два туалети та два балкони
Ціна дуже вигідна ! Звертайтесь














