Продаж ділянки під житлову забудову, 12 сотих, вул. Микулинецька (№ 26-130-054)
Ціна: 42 000 $

Характеристики
Ціна: | 42 000 $ |
---|---|
№ об'єкта: | 26-130-054 |
Призначення: | під житлову застройку |
Площа: | 12 сот |
Адреса: Тернопільська, Тернопільський, Велика Березовиця
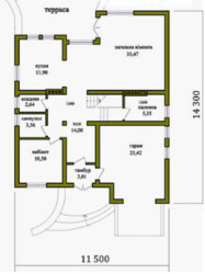
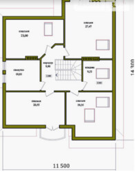
Земельна ділянка знаходиться за котеджами `Кленовий Гай` район цукрового заводу, на ділянці залито фундамент цокольний розміром 11500 на 14300 (показано на фото) є вагончик, буд матеріали, проведене світло , недалеко знаходиться лісова посадка, хороше місце. Тернопіль р-н Цукрового заводу.